Das Haus zum Leben.
ca. 123,89 m²
Place 4
Einfamilienhaus

Unsere Sonderaktion „PLACE“ macht deinen Haustraum endlich realisierbar. Ob gemeinsames Familienleben im großzügigen Wohn- und Essbereich oder Rückzugsmöglichkeiten in den privaten Zimmern – PLACE 4 passt sich perfekt deinem Alltag an.

Aussenmaße: 8.24 m x 9.44 m

Grundrisse vergleichen
Inklusiv-Leistungen
  • Architektenleistung
  • Bau-Sicherheitspaket
  • Heizungsanlage- und Elektropaket
  • Dreifach verglaste Fenster inkl. Aluminiumrollläden
  • Luft-Wasser-Wärmepumpe
  • Echtholztreppe
  • Bodenbeläge und Tapeten
  • Luftdichtigkeitsmessung
  • Lichte Raumhöhe von 2,75 m
  • Dämm- und Beplankungspaket
  • Haustechnik inklusive Rohrleitungen
  • Kontrollierte Be- und Entlüftungsanlage mit Wärmerückgewinnung
  • Sanitärobjekte
  • Innentüren, Zargen und Fliesen
  • Steckdosen

Alle Einzelheiten sind in unserer Baubeschreibung nachzulesen.

*ausgeschlossen Apartmenthäuser

Leistungsbeschreibung im Detail

ca. 123,89 m²

Place4

Aktionshaus

Dieses Haus verbindet zeitlose Architektur mit einem durchdachten Grundriss, der viel Raum für Familie, Freunde und individuelle Wünsche bietet. Große Fenster sorgen für lichtdurchflutete Räume und schaffen ein offenes, freundliches Wohnambiente. Ob gemeinsames Familienleben im großzügigen Wohn- und Essbereich oder Rückzugsmöglichkeiten in den privaten Zimmern – PLACE 4 passt sich perfekt deinem Alltag an. Dank zahlreicher Inklusivleistungen und den Vorteilen unserer Sonderaktion wird dein Traum vom eigenen Zuhause jetzt besonders attraktiv.

38
0
°
Dachneigung

123
0
Nettogrundfläche

1,3
0
Meter
Kniestock

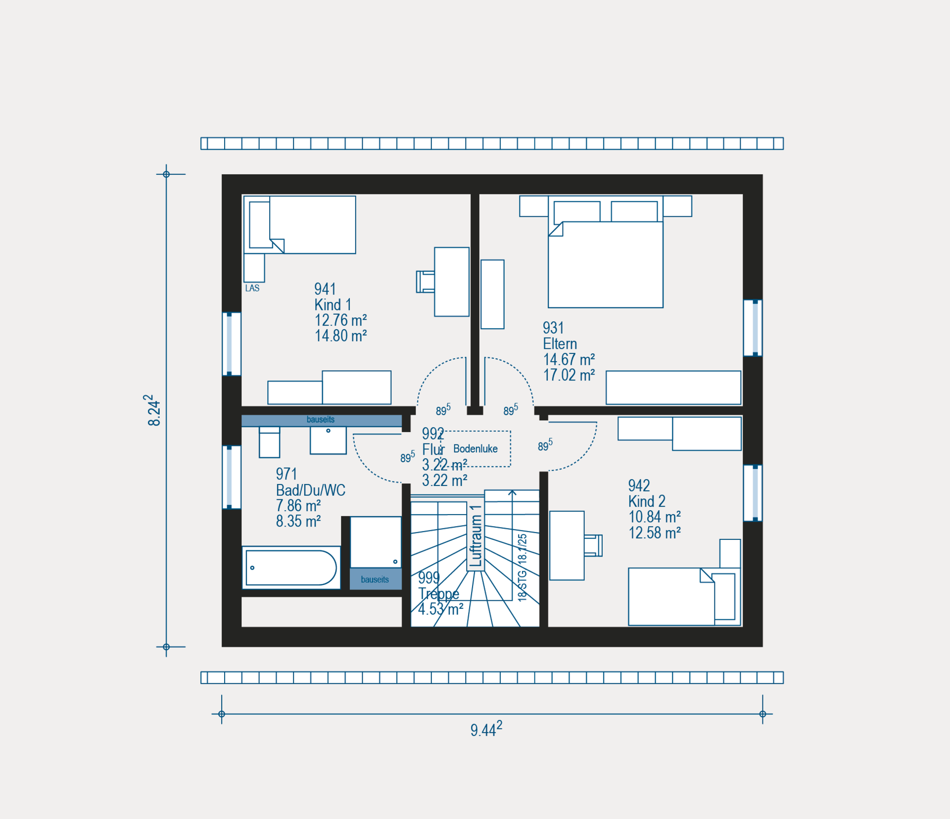
Grundriss

Hohe Individualität

Baufamilien können nach eigenem Geschmack den Grundriss des Hauses variieren und weitere Anbauteile planen. Dadurch besteht die Möglichkeit, das Haus geräumiger zu machen.

Erdgeschoss
63,39 m²
Dachgeschoss
60,5 m²

AktionshäuserPLACEmitvielenInklusivleistungen

  • 10.000€ Rabatt für den keller
  • 5.000€ Rabatt für die Bodenplatte
  • Luft-Wasser-Wärmepumpe
  • Effizienzhaus
  • 3-fach verglaste Fenster
  • Aluminium-Rollläden
  • Kontrollierte Be-/Entlüftungsanlage
  • Bau-Versicherungspaket
  • Architektenleistung
  • Luftdichtigkeitsmessung

allkauf ist genau die richtige Wahl für alle, die sich mit Eigenleistung aktiv in den Bau ihres Traumhauses einbringen möchten.

Ausbaupaket 1:
‒ Haustechnikpaket inkl. Rohrleitungen
‒ Heizungsanlage
‒ Elektropaket
‒ Dämm- und Beplankungspaket

Ausbaupaket 2:
‒ Sanitärobjekte
‒ Fliesen und Fensterbänke
‒ Innentüren ink. Zargen
‒ Bodenbeläge und Tapeten

TraumhausinSicht

Wir begleiten dich

Du bist dir nicht sicher, ob unser Aktionshaus PLACE 4 das richtige Haus für dich ist? Kein Problem, unsere Hausbauprofis beraten dich gerne!

Traumhaus

Für jeden das Passende
Kleiner Junge sitzt auf dem Wohnzimmerboden und spielt mit bunten Holzklötzen

Bauteile

Mit individuellen Bauteilen lassen sich Fertighäuser einzigartig gestalten. Bauteile haben auch ganz praktische Funktionen, die sich konkret auf das Wohngefühl auswirken.

Vielfalt
Pärchen schaut sich an und hält gemeinsam einen Haustürschlüssel vor sich

Infopaket anfordern

Bei dieser Vielfalt ist sicherlich für jeden Geschmack das perfekte Traumhaus dabei. Gemeinsam mit dir planen und bauen wir das Fertighaus, das am Besten zu dir passt.

Glückliches Paar steht Rücken an Rücken und hält Bohrmaschinen beim Innenausbau

Fertighaus als Ausbauhaus

Wer ein Fertighaus mit allkauf baut, der profitiert von unserem durchdachten Ausbauhauskonzept. Unsere Bauherren können den Innenausbau komplett in Eigenregie übernehmen.

Traumhaus

Für jeden das Passende
Kleiner Junge sitzt auf dem Wohnzimmerboden und spielt mit bunten Holzklötzen

Bauteile

Mit individuellen Bauteilen lassen sich Fertighäuser einzigartig gestalten. Bauteile haben auch ganz praktische Funktionen, die sich konkret auf das Wohngefühl auswirken.

Vielfalt
Pärchen schaut sich an und hält gemeinsam einen Haustürschlüssel vor sich
Glückliches Paar steht Rücken an Rücken und hält Bohrmaschinen beim Innenausbau

Fertighaus als Ausbauhaus

Wer ein Fertighaus mit allkauf baut, der profitiert von unserem durchdachten Ausbauhauskonzept. Unsere Bauherren können den Innenausbau komplett in Eigenregie übernehmen.

Infopaket anfordern

Bei dieser Vielfalt ist sicherlich für jeden Geschmack das perfekte Traumhaus dabei. Gemeinsam mit dir planen und bauen wir das Fertighaus, das am Besten zu dir passt.

Datenblatt

Erdgeschoss
63,39m2
Nettogrundfläche*
8,24m 9,44m
Obergeschoss
-
Satteldach
38°
Kniestockhöhe
1,3m
Dachgeschoss
60,5m2

allkaufKonzept

So geht Hausbau heute!

KFNready

Nachhaltig bauen

Verpasse nicht die neue KFN-Förderung

Die neue Förderung löst die bisherigen Förderrichtlinien BEG Wohngebäude und BEG Nichtwohn­gebäude ab.

Glückliche Eltern stehen mit ihren 2 Kindern in den Armen auf einem Feld beim Sonnenuntergang
Förderung sichern

Mehr Infos

Logo der Qualitätsgemeinschaft Deutscher Fertigbau (QDF)
Logo Bundesverband Deutscher Fertigbau e.V. (BDF)
RAL Gütezeichen Holzhausbau
Siegel der Bundes-Gütegemeinschaft Montagebau und Fertighäuser e. V. (BMF)
Siegel für Top-Hersteller für Fertighäuser, ausgezeichnet vom Capital Fertighaus-Kompass
CrefoZert-Bonitätszertifikat für ausgezeichnete Bonität 2023

Jetzt kostenloses Infopaket anfordern!

kostenlos anfordern

Sichere dir vielfältige Informationen rund um dein Traumhaus von allkauf: Unser allkauf Magazin, aktuelle Aktionsprospekte zum richtig Geld sparen, Gutscheine u. v. m.!