Das Haus zum Leben.
ca. 136,07 m²
Casa Mia 1
Einfamilienhaus

Mit unserer Sonderaktion „CASA MIA“ kommst du endlich raus aus der Miete und rein ins Leben. Sichere dir unser Aktionshaus CASA MIA 1 zum Sonderpreis, die deine Miete schlagen.
Und das ist noch nicht alles: Bodenplatte oder Keller gibt es zum Sonderpreis – und zusätzlich erhältst du einen Gutschein für Küche oder Garage obendrauf.

Aussenmaße: 8.84 m x 9.44 m

Grundrisse vergleichen
Inklusiv-Leistungen
  • Architektenleistung
  • Bau-Sicherheitspaket
  • Heizungsanlage- und Elektropaket
  • Dreifach verglaste Fenster inkl. Aluminiumrollläden
  • Luft-Wasser-Wärmepumpe
  • Echtholztreppe
  • Bodenbeläge und Tapeten
  • Luftdichtigkeitsmessung
  • Lichte Raumhöhe von 2,75 m
  • Dämm- und Beplankungspaket
  • Haustechnik inklusive Rohrleitungen
  • Kontrollierte Be- und Entlüftungsanlage mit Wärmerückgewinnung
  • Sanitärobjekte
  • Innentüren, Zargen und Fliesen
  • Steckdosen

Alle Einzelheiten sind in unserer Baubeschreibung nachzulesen.

*ausgeschlossen Apartmenthäuser

Leistungsbeschreibung im Detail

ca. 136,07 m²

CasaMia1

Aktionshaus

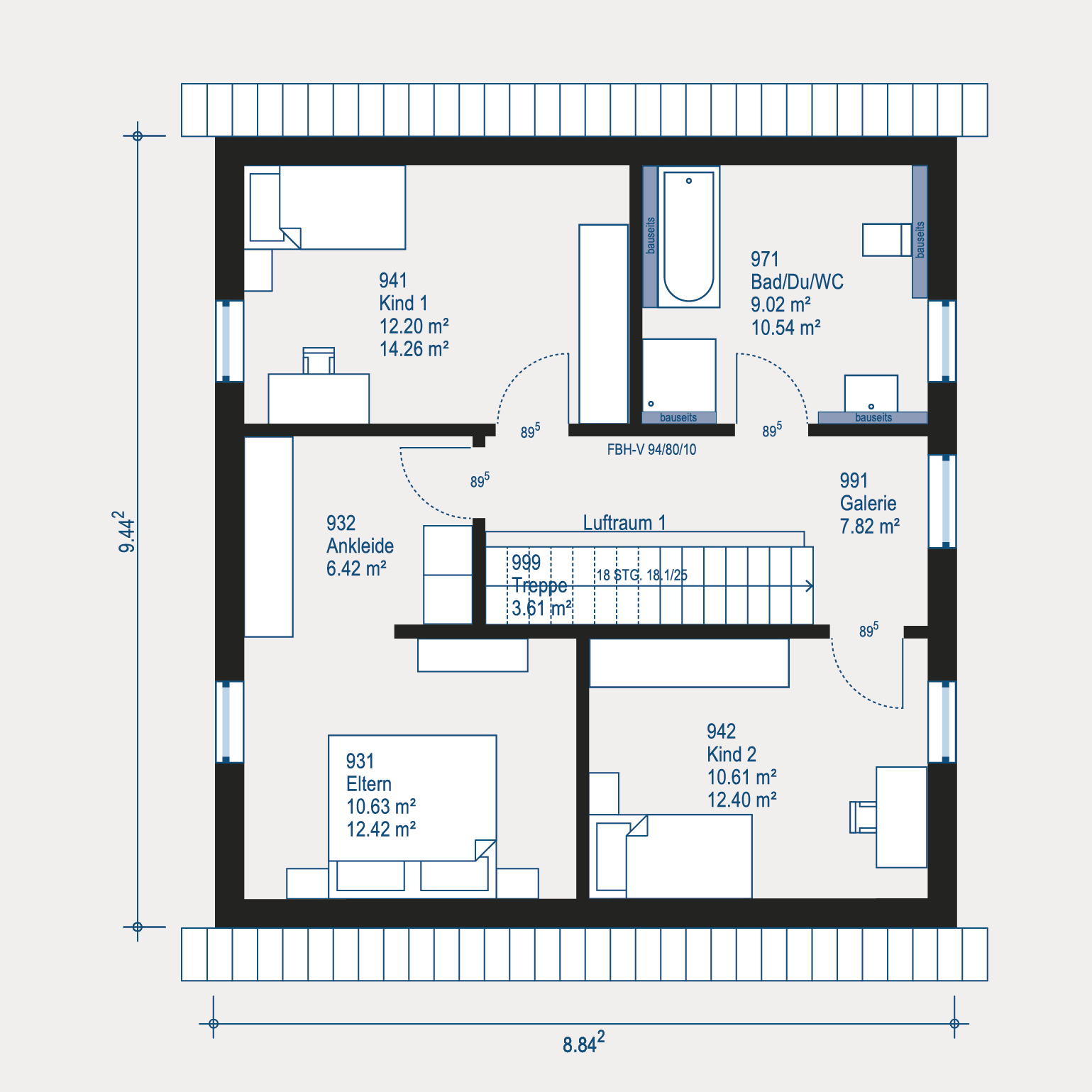
Das CASA MIA 1 zeichnet sich durch seine großzügige und gut durchdachte Raumgestaltung aus. Das offene gestaltete Erdgeschoss, welches durch eine Treppe den Wohn- und Essbereich voneinander trennt, lädt für gemütliche Stunden mit der Familie ein. Im Dachgeschoss erwartet dich ein entspanntes Wohnambiente, mit zwei Kinderzimmern, einem Elternschlafzimmer und einem luxuriösen Badezimmer, das dein neues Zuhause in eine Oase der Ruhe verwandelt.

38
0
°
Dachneigung

136
0
Nettogrundfläche

1,40
0
Meter
Kniestock

Grundriss

Hohe Individualität

Baufamilien können nach eigenem Geschmack den Grundriss des Hauses variieren und weitere Anbauteile planen. Dadurch besteht die Möglichkeit, das Haus geräumiger zu machen.

Grundriss Erdgeschoss Aktionshaus Casa Mia 1 von allkauf
Erdgeschoss
68,6 m²
Grundriss Dachgeschoss Aktionshaus Casa Mia 1 von allkauf
Dachgeschoss
67,47 m²

AktionshäuserCASAMIAmitvielenInklusivleistungen

  • Gutschein für Küche oder Garage
  • 8.000€ Rabatt für die Bodenplatte
  • 10.000€ Rabatt für den Keller
  • Luft-Wasser-Wärmepumpe
  • Effizienzhaus
  • 3-fach verglaste Fenster
  • Aluminium-Rollläden
  • Kontrollierte Be-/Entlüftungsanlage
  • Bau-Versicherungspaket
  • Architektenleistung
  • Luftdichtigkeitsmessung

allkauf ist genau die richtige Wahl für alle, die sich mit Eigenleistung aktiv in den Bau ihres Traumhauses einbringen möchten.

Ausbaupaket 1:
‒ Haustechnikpaket inkl. Rohrleitungen
‒ Heizungsanlage
‒ Elektropaket
‒ Dämm- und Beplankungspaket

Ausbaupaket 2:
‒ Sanitärobjekte
‒ Fliesen und Fensterbänke
‒ Innentüren ink. Zargen
‒ Bodenbeläge und Tapeten

Investiere jetzt in dein Eigenheim

Starte jetzt deinen Weg raus aus der Miete und rein ins Leben. In unserer Broschüre findest du alle Infos zu unserem exklusiven Aktionshaus CASA MIA 1 – also jetzt downloaden und mehr erfahren.

Hausbroschüre herunterladen

TraumhausinSicht

Wir begleiten dich

Du bist dir nicht sicher, ob unser Aktionshaus CASA MIA 1 das richtige Haus für dich ist? Kein Problem, unsere Hausbauprofis beraten dich gerne!

Traumhaus

Für jeden das Passende
Kleiner Junge sitzt auf dem Wohnzimmerboden und spielt mit bunten Holzklötzen

Bauteile

Mit individuellen Bauteilen lassen sich Fertighäuser einzigartig gestalten. Bauteile haben auch ganz praktische Funktionen, die sich konkret auf das Wohngefühl auswirken.

Vielfalt
Pärchen schaut sich an und hält gemeinsam einen Haustürschlüssel vor sich

Infopaket anfordern

Bei dieser Vielfalt ist sicherlich für jeden Geschmack das perfekte Traumhaus dabei. Gemeinsam mit dir planen und bauen wir das Fertighaus, das am Besten zu dir passt.

Glückliches Paar steht Rücken an Rücken und hält Bohrmaschinen beim Innenausbau

Fertighaus als Ausbauhaus

Wer ein Fertighaus mit allkauf baut, der profitiert von unserem durchdachten Ausbauhauskonzept. Unsere Bauherren können den Innenausbau komplett in Eigenregie übernehmen.

Traumhaus

Für jeden das Passende
Kleiner Junge sitzt auf dem Wohnzimmerboden und spielt mit bunten Holzklötzen

Bauteile

Mit individuellen Bauteilen lassen sich Fertighäuser einzigartig gestalten. Bauteile haben auch ganz praktische Funktionen, die sich konkret auf das Wohngefühl auswirken.

Vielfalt
Pärchen schaut sich an und hält gemeinsam einen Haustürschlüssel vor sich
Glückliches Paar steht Rücken an Rücken und hält Bohrmaschinen beim Innenausbau

Fertighaus als Ausbauhaus

Wer ein Fertighaus mit allkauf baut, der profitiert von unserem durchdachten Ausbauhauskonzept. Unsere Bauherren können den Innenausbau komplett in Eigenregie übernehmen.

Infopaket anfordern

Bei dieser Vielfalt ist sicherlich für jeden Geschmack das perfekte Traumhaus dabei. Gemeinsam mit dir planen und bauen wir das Fertighaus, das am Besten zu dir passt.

Datenblatt

Erdgeschoss
68,6m2
Nettogrundfläche*
8,84m 9,44m
Obergeschoss
-
Satteldach
38°
Kniestockhöhe
1,4m
Dachgeschoss
67,47m2

allkaufKonzept

So geht Hausbau heute!

KFNready

Nachhaltig bauen

Verpasse nicht die neue KFN-Förderung

Die neue Förderung löst die bisherigen Förderrichtlinien BEG Wohngebäude und BEG Nichtwohn­gebäude ab.

Glückliche Eltern stehen mit ihren 2 Kindern in den Armen auf einem Feld beim Sonnenuntergang
Förderung sichern

Mehr Infos

Logo der Qualitätsgemeinschaft Deutscher Fertigbau (QDF)
Logo Bundesverband Deutscher Fertigbau e.V. (BDF)
RAL Gütezeichen Holzhausbau
Siegel der Bundes-Gütegemeinschaft Montagebau und Fertighäuser e. V. (BMF)
Siegel für Top-Hersteller für Fertighäuser, ausgezeichnet vom Capital Fertighaus-Kompass
CrefoZert-Bonitätszertifikat für ausgezeichnete Bonität 2025

Jetzt kostenloses Infopaket anfordern!

kostenlos anfordern

Sichere dir vielfältige Informationen rund um dein Traumhaus von allkauf: Unser allkauf Magazin, aktuelle Aktionsprospekte zum richtig Geld sparen, Gutscheine u. v. m.!

Junges glückliches Paar gibt sich ein High-five während der Renovierung ihrem Haus